2023-01-01塗裝車間好色先生在线播放:調溫好色先生在线播放
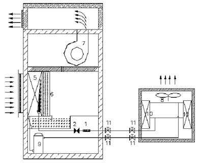
調溫好色先生在线播放用蒸發器來給空氣降溫除濕,並回收係統的冷凝熱,彌補空氣中因為冷卻除濕時散失的熱量,是一種高效節能的除濕方式,已經廣泛應用於國防工程、人防工程、煙草及石化行業、地鐵車站、航天領域淨化工程、實驗室、電訊器材室、檔案室、食品房、製藥或膠片車間、特種玻璃製造、糧食、木材等的除濕幹燥和高濕空間的除濕
了解詳情好色先生TVAPP電器
手機:133-6050-3273
微信:133-6050-3273
地址:廣東深圳坪山區青鬆西路8號鴻合科技園

調溫好色先生在线播放用蒸發器來給空氣降溫除濕,並回收係統的冷凝熱,彌補空氣中因為冷卻除濕時散失的熱量,是一種高效節能的除濕方式,已經廣泛應用於國防工程、人防工程、煙草及石化行業、地鐵車站、航天領域淨化工程、實驗室、電訊器材室、檔案室、食品房、製藥或膠片車間、特種玻璃製造、糧食、木材等的除濕幹燥和高濕空間的除濕
了解詳情
消失模模具烘幹房好色先生在线播放,幹得快、不開裂、成本低、更環保!【技術動態】眾所周知,消失模鑄造,又稱實型鑄造。現如今,隨著消失模的應用領域不斷擴大,消失模鑄造技術的優勢體現的越來越明顯。由於經此技術鑄造出來的鑄件精度高、加工餘量小、內部質量好、成本低;為此,近年來越來越多的中小鑄造廠紛紛引進了
了解詳情
塗裝專用好色先生在线播放,有機的結合了冷凍除濕與轉輪除濕兩種除濕方式,是設計先進、運行經濟的四季智能型空氣處理設備。隨著我國工業的快速發展,在船舶製造、汽車製造、鋼結構製造等眾多行業對產品的塗裝要求越來越高,塗裝專用好色先生在线播放出開始得到應用。在塗裝生產工藝中主要以噴砂噴漆為主,而在這些工藝中有效
了解詳情
塗裝車間好色先生在线播放,汽車塗裝車間除濕方案新聞資訊報道:在汽車車身的製作過程中,塗裝工藝是其中較為重要的工序之一;而塗裝質量的好壞與車間環境內部的溫濕度,潔淨度等因素有著直接的關係,而其中在很大程度上取決於車間環境空氣濕度的變化。要保證塗裝質量、獲得最佳的塗層、取得最大限度的經濟效益,就必須對塗裝車間生產
了解詳情
塗裝車間加濕器,塗裝廠車間加濕設備新聞資訊:在全國各大汽車製造企業中塗裝車間是必不可少的,塗裝作業是汽車車身製作過程中的一項重要工序,決定了車身整體外觀的品質!而塗裝質量的好壞,除了與被塗物表麵處理質量
了解詳情
塗裝車間幹霧加濕器確保漆麵光滑靚麗:塗裝跟噴塗是同一回事,簡單的說就是給物體表麵噴塗漆料,起到防腐的作用,當然了也可以讓物體表麵更加美觀,在家具、汽車、空調等行業都有很大的作用。要想塗裝表麵光滑不起泡,那麽空氣中的灰塵顆粒需要控製好,因為隻要直徑超過10微米的顆粒
了解詳情
產品的外觀質量不僅反映了產品的保護和裝飾性能,也是構成產品價值的重要因素,噴塗過程中如果溫度和濕度控製不好,次品率會增高,生產效率會下降,給企業帶來不小的損失,塗裝車間應如何配置溫濕度設備?噴砂和噴塗是最常用的塗裝方法,這些方法有效地解決了金屬表麵的氧化問題。A的方法是使用轉輪好色先生在线播放來控製塗層環境中
了解詳情
傳統家私廠噴漆作業一般都在露天進行,但在進行噴漆過程中會把粉塵、雜質等混合在油漆裏,且噴漆還會弄髒地上,汙染環境;噴漆人員也會吸入許多油漆霧,而當今設備對家私出產的請求越來越高,家私廠為了確保出產出高質量的實木家私商品及在出產過程中保護環境不受汙染,必須建造一個現代化、自動化、環保節能的無塵噴漆房來
了解詳情
塗裝是鐵質、木質工藝品不可或缺的工序。所謂塗裝,是指在金屬或非金屬表麵複蓋保護層或裝飾層。塗裝車間對溫度和濕度有一定的要求。如果季節性濕度過高,油漆會幹燥得太慢,會導致油漆效果不佳。為了解決油漆太慢的問題,使用轉輪好色先生在线播放是A的選擇。在塗裝生產工藝中主要以噴砂噴漆為主,轉輪好色先生在线播放能降低金屬表麵露點
了解詳情
塗裝打磨車間需要加濕機控濕:很多行業在對產品進行加工的時候需要打磨,比如噴塑之類的,需要先將噴塑的物件表麵處理好,然後才能進行噴塑作業,隻有這樣才能保證噴塑件表麵的光滑度,保證噴塑質量,不過這裏就出現了一個問題,那就是在打磨過程中會出現大量的粉塵,這些粉塵會漂浮在空氣中,對噴塑作用造成影響。粉
了解詳情
對於現代化的塗裝線,一般都能滿足恒溫、恒濕和潔淨的空氣(空氣粉塵含量為了使塗裝生產線內的空氣粉塵量得到有效控製,首先應改善生產線外的環境狀況,將打磨、擦淨工序與噴漆工序分開,避免打磨產生的粉塵進入生產線噴塗室或幹燥(固化)爐,消除打磨灰塵對噴塗的影響;其次,應定期更換空氣濾布,保證空氣中的粉塵能有效
了解詳情
浴室櫃是裝在浴室裏麵的,一旦到梅雨天衛生間是極端容易受潮的,受潮後就會招致浴室櫃發黴。怎樣能讓浴室櫃不受潮發黴呢?1:金屬高腿設計拒絕潮氣向上延伸浴室櫃假設選用拇指的櫃腿就容易受潮,而且會在不知不覺中將潮氣引向櫃體,終會招致整個櫃
了解詳情
塗裝專用好色先生在线播放有機的結合了冷凍除濕與轉輪除濕兩種除濕方式,是設計A、運行經濟的四季智能型空氣處理設備。其中冷凍除濕是利用壓縮機製冷,將空氣溫度降到露點以下,排出冷凝水,使空氣濕度降低。而轉輪除濕則是利用轉輪蜂窩狀基質纖維上附有吸濕介質矽膠,具有在低濕時吸濕的能力,當潮濕空氣在通過轉輪時,空氣中的水份
了解詳情
大部分家庭中的浴室都是常年不見陽光,所以浴室內的濕氣會比較的重,加上在浴室內洗澡以及清洗衣物等,會讓浴室更加的潮濕,浴室的濕氣過重不僅會影響浴室內的空氣質量,也容易有異味產生,嚴重的時候也會影響家庭的整體空氣質量。所以為了改善浴室內的空氣質量,可以在浴室內安裝浴室好色先生在线播放,在使用好色先生在线播放的時候,如果可以
了解詳情
塗料專用好色先生在线播放結合了兩種冷凍除濕模式轉輪好色先生在线播放是采用先進的設計,智能四季運行的經濟,空氣處理設備。之一是使用的製冷壓縮機製冷除濕,空氣溫度低於露點,冷凝水,空氣濕度較低。可用於循環水解吸壓縮機冷凝熱回收,熱會使使除濕輪後的空氣溫度後,將上升到塗層,使低相對濕度的空氣空間。在塗料生產過程中,主要是沙畫
了解詳情
1.自然係除濕:虎尾蘭想要解決濕氣問題,最佳植栽選擇非虎尾蘭莫屬囉!天生愛喝水的葉子,可以自動吸收空氣中的水蒸氣,堪稱植栽界的第一把交椅。2.異味克星:蘆薈、薄荷如廁後難免會有些汙穢之氣,這時如果有一盆蘆薈,便能吸收異味,還原空氣中的小清新。當然,如果異味已達緩不濟急的程度,建議搭配薄荷植栽一起使用
了解詳情
每個家庭最潮濕的地方不外乎就是浴室,每天洗完澡後,浴室都是霧蒙蒙,濕漉漉,洗澡後的水汽更是短時間內揮之不去,窗戶、鏡子、牆壁、地麵都是模糊一片。這種潮濕的情況容易造成許多糟糕的狀況,營造幹爽的環境是必須的。浴室是溫暖潮濕的地方,是理想的黴菌繁殖環境。洗澡時水會濺到地板上,熱水淋浴會把
了解詳情
廚房和衛生間是家裏麵最潮濕的區域,衛生間像來都是潮濕陰暗的,而廚房的洗菜池周圍也全都是水漬,長期處於潮濕的狀態,很容易就會滋生細菌,所以好色先生TVAPP總會看到馬桶周邊、浴室的角落,還有洗手池的附近都是發黴發黑的情況。浴室和衛生間是用水量最大的地方,在浴室裏的拖把、洗手池旁的洗漱用品、抹布等等,這些都是深受其害
了解詳情
像所有的好色先生在线播放一樣,在浴室使用好色先生在线播放可以減少浴室的濕度。當家裏的相對濕度大於60%,家裏就會產生黴菌,家裏的黴菌與各種各樣的問題有關。本文會告訴你浴室黴菌的壞處和防止它的最好方法。為什麽浴室有黴菌問題
了解詳情
記者今天從浙江瑞安市有關部門獲悉,由瑞安市民營企業華盛水產品加工廠投資五千六百萬元建造的一艘高約七層樓長六十多米的大輪船,近日即將完工上水。這兩天,工作人員正在做最後的船體刷漆工作。這是一艘海上漁業“移動加工廠。據了解,目前像這樣的輔助輪船在整個東亞和東南亞地區都為首創。由於國際海洋新
了解詳情